Architectural Garden of Work

Residential Remodel

Hanover, MA

Designed by GPS and Drafted by Blossom Roberge

Client Project 2024 & 2025

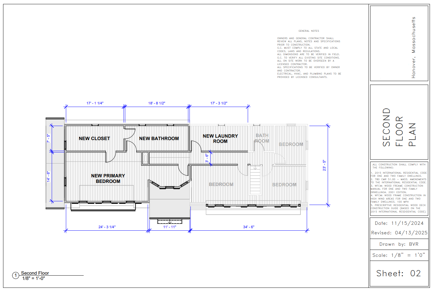
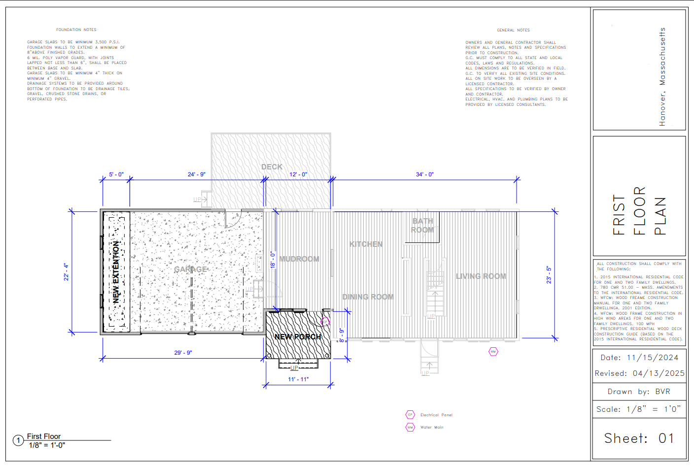
The client had asked me to draft a schematic design set that included floor plans, elevations, sections, axonometric perspectives and details of the construction. This 3-bedroom 2-bathroom home was in need of expanding to accommodate their growing family.

The project at hand was to draft an addition above the existing garage, to create a primary bedroom with a private bath and closet. We added a hallway to the second floor in order to provide a clear avenue to the new primary. In order to fit the new laundry room, we downsized the original primary, but kept it spacious enough to transform it into the new baby’s bedroom. The first floor underwent some additions as well, including an extension off of the west wall of the garage creating space for more than one car to enter, and a new porch off the front of the home, directing you to the new front door.

Co-op Farmer’s Marketplace

Lakeville, MA

MassArt 2024

For my senior year thesis, I set out to design a large scaled co-op farmers marketplace. The design I came up with was simple, but had several components woven inside and outside of the marketplace to support a regenerative and year round co-op. Eventually the entire property became it’s own self sustaining system.

Illustrated on the site map are:

  • Vendor market stalls (1)

  • Outdoor tented gathering and dining area (1A)

  • Between the market and the outdoor gathering area is the kitchen and food prep space.

  • South West corner is a walkway that connects the main structure to the greenhouses and garden beds (9-10)

  • North East corner of the market introduces the restrooms and an indoor dining and community gathering space (1B).

House in the Woods

Rural Massachusetts

MassArt 2024

This project studied an abandoned home located in the dense woods of Massachusetts. This building is very unique, as the structural support of the building is all exposed on the exterior- essentially appearing inside out, this is something you don’t typically see in a traditional residential build. For this project I wanted to keep the intimate and quirky feel. It’s a small yet tall structure- and I wanted to utilize the different levels of the building to my advantage and create separate zones and for these floor to serve it’s own purpose. With the skeleton of the structure wrapping the exterior- this unique look takes on the appearance of a built-in trellis- which adds even more romantic appeal to the facade.

For the House in the Woods, I designed an intimate Farm-to-Table Restaurant. Listed below are the key features of this project:

  • Ground level includes the guest parking, seasonal garden beds, the greenhouse, the newly constructed house for the hosts

The existing house was designed as such:

  • Ground Floor- Kitchen and prep area

  • First Floor- Large deck for mingling, and guest check-in and restroom

  • Second Floor- Dining room for farm-to-table experience to take place

In addition, to connect these spaces are:

  • A long sloped walkway taking guests from the parking lot directly to the first floor deck

  • An exterior stair case from ground to second floor

  • An interior elevator from the ground floor to the exterior deck on the second floor

Reclaiming Blue

Hill Avenue

Roxbury, MA

MassArt 2023

Blue Hill Avenue is road in Boston that is known for it’s endless shops, buildings crowding one another, apartment dwellings, and much more. The exercise was to find ways to reclaim the chaos that inhabits the street, and incorporate a community space that would offers dwellings, areas to support physical activity, and provide a moment where locals can rest- all on one of the most populated street in Boston.

I designed a large solar power generated apartment building, a cafe and eatery economically accessible to all with an attached rooftop garden, a gymnasium and yoga studio, an auditorium for local gatherings, and an office building with plenty of room for a business and their team to work out of.

Residential Drawing Study

Onset, MA

MassArt 2023

For this drawing study, I found myself a relatively-complex façade on a residential home, and was tasked to draw different perspectives. Here, I learned lots of tips and techniques on controlling the line-weight of a hand drawing to illustrate a two-dimensional elevation drawing, vs. the third dimension, exploring a three-point perspective illustration.

Jamaica Pond Recreation Center

Jamaica Plain, MA

Honorably Mentioned Topographic Model

MassArt 2022

This topographic model maps a public recreation area found in Jamaica Plain, MA. For the project, I was assigned to make a small topographic model before starting the design process. Hand-cut and glued one layer at a time, my model was honorably mentioned that semester for the clean cut results I produced.

Minimum Dwelling Study

Honorably Mentioned Structural Model

MassArt 2022

One of my first architectural design projects at MassArt, we were tasked to design an entire dwelling within the confines of 16 ft x 16 ft. There were no perimeters of how high we could build, so I readily took advantage of including a spiral staircase that led up to the bathroom.

This model was honorably mentioned for the creative materials I repurposed: The sandpaper wall, popsicle stick treads and paper straw staircase, the marbled kitchen counter and radio made of bee’s wax, and the clay figures I sculpted for the bathroom appliances, couch, pillows, and kitchen sink.