Landscape Garden of Work

Monterey County, CA

Blue Door Garden Design, Inc.

2024-2025

Design Sets

Designed by Blue Door Garden Design and Drafted By Blossom Roberge

Client Projects 2025

Clients in Pacific Grove reached out to Blue Door Garden Design Inc. to address landscape design ideas for the entire property. I was able to assist this project by drafting out a seven-page drawing set that included an Erosion Control plan-addressing protocols for constructing in the raining season. These drawings were reviewed by the city of Pacific Grove.

Clients in Pacific Grove that needed landscape design help with addressing the back portion of their property. With Blue Door Garden Design, I had the opportunity to draft another seven-page landscape drawing set. This set included a Detail page that outlined constructing two fences, two trellises, and an outdoor kitchen cabinet.

Conceptual Design Drawings

Designed and Drafted by Blossom Roberge

Client Projects 2024 & 2025

In Salinas, the clients wanted a conceptual drawing that kept several areas of activities into consideration. These zones included a kid-friendly meadow, a private spa to isolate the bath, shower, sauna and hot tub, a fruit orchard, as well as a gardening nook, highlighted by a greenhouse. In order to allow these areas to have a consistent flow, I incorporated an organically shaped decomposed granite walkway that would gradually introduce one space into the next. Off of the back patio, I placed a coastal live oak tree with dispersed grasses and minimal seating to balance active and high trafficked areas. I also included privacy screening via large mature trees on both the Eastern and Western perimeters, to keep the property as a whole and it’s views, unobstructed of neighboring homes.


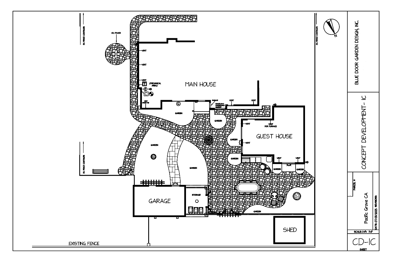
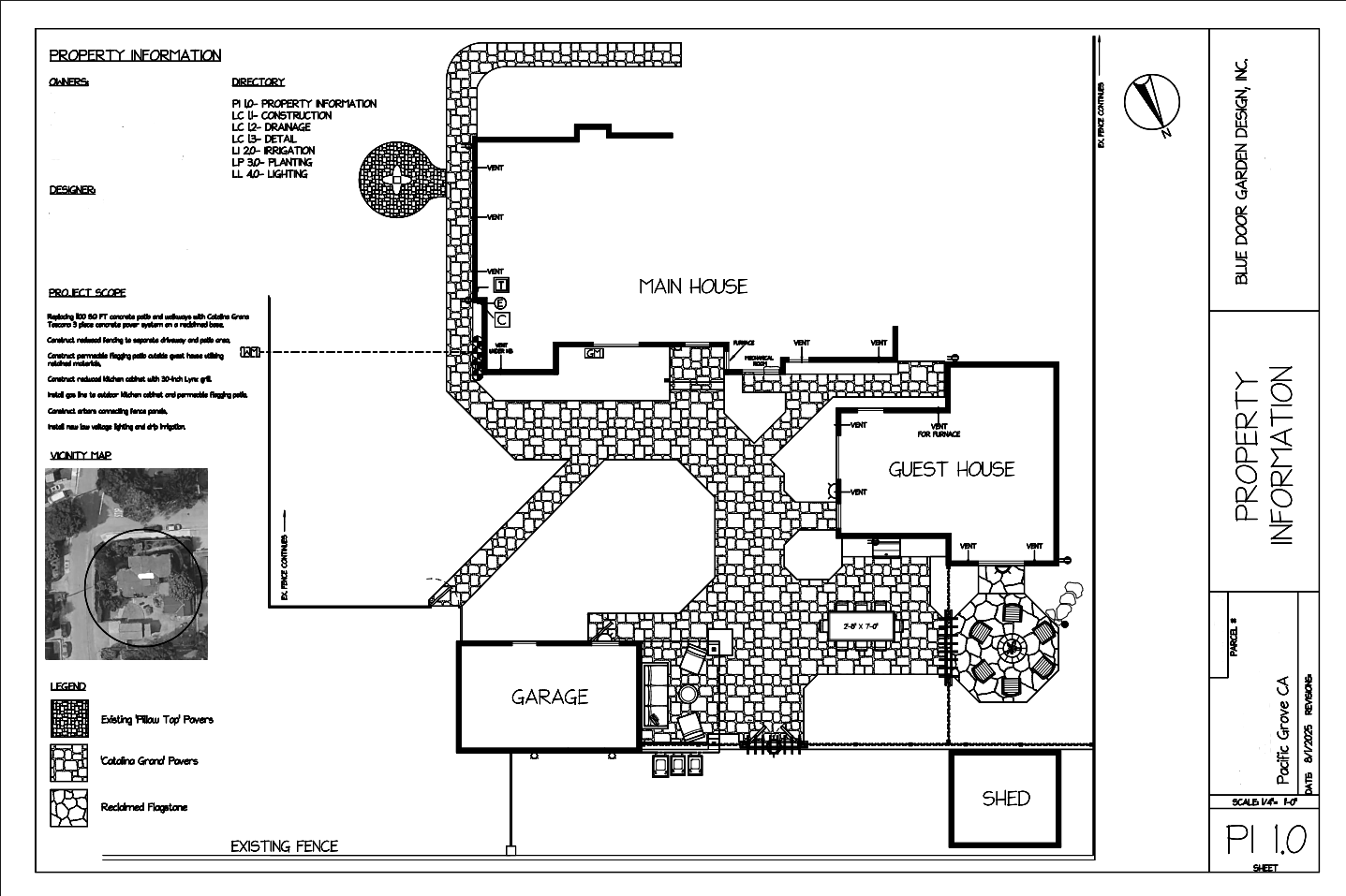
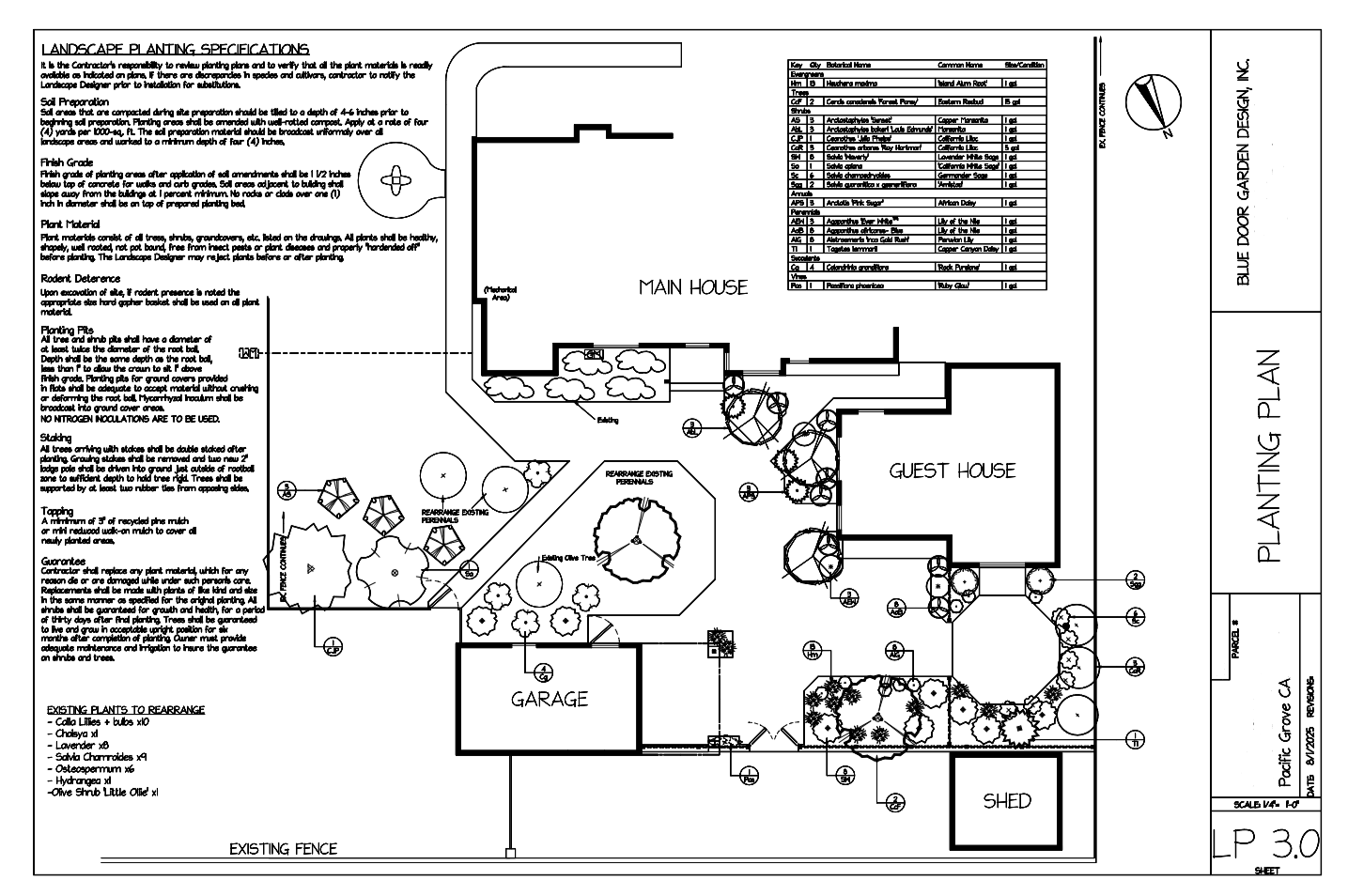
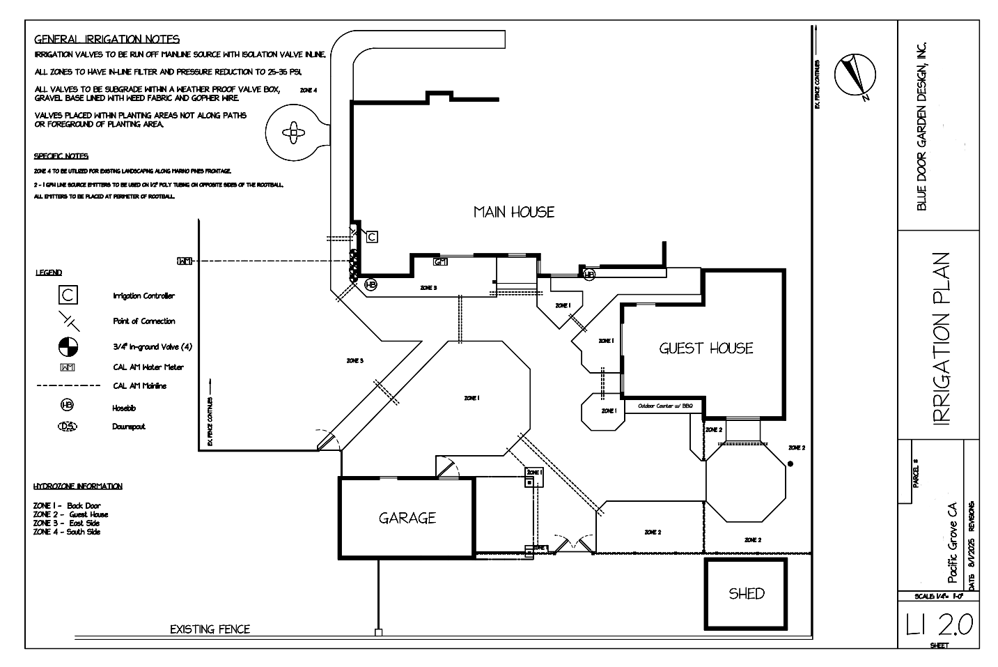
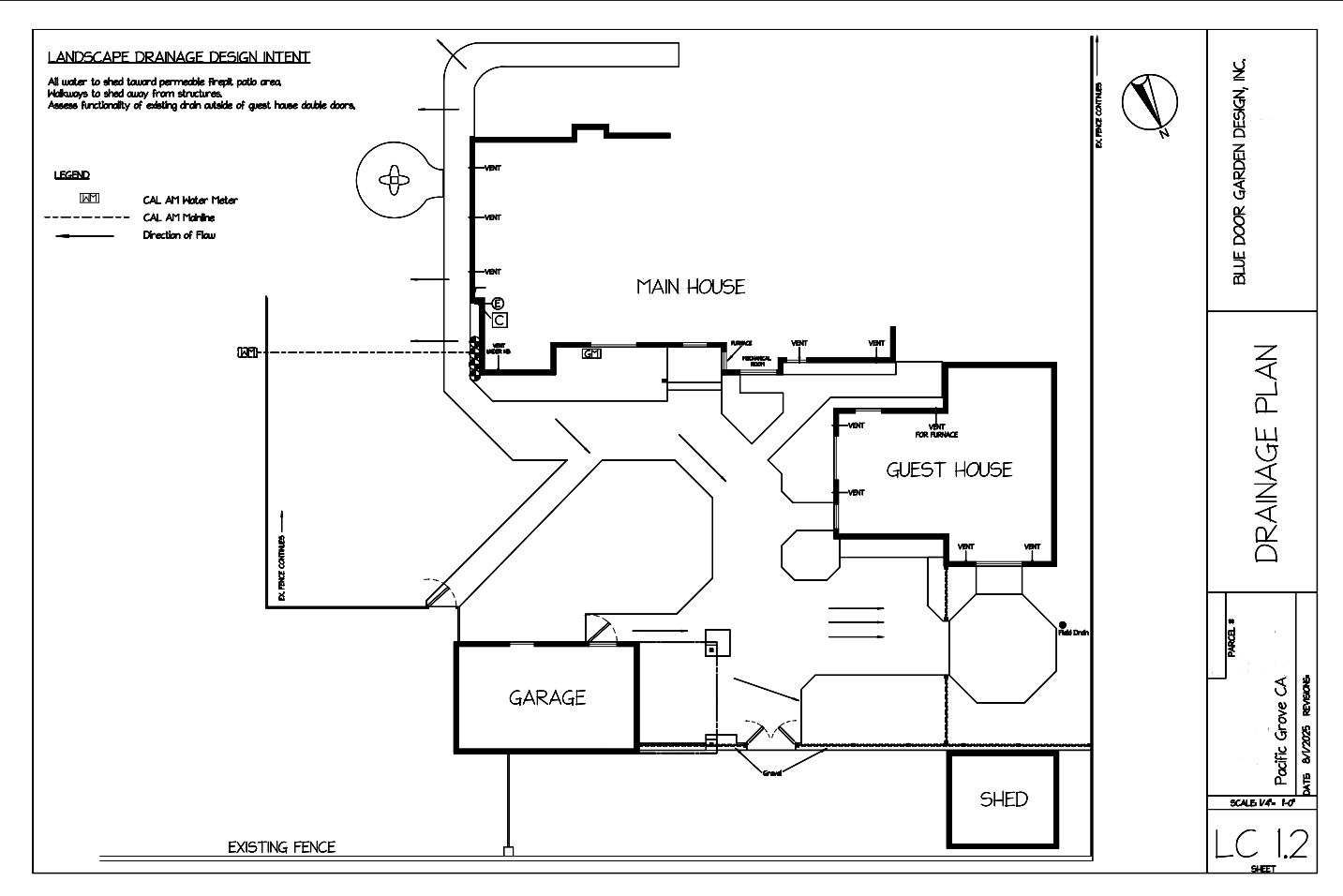
In Pacific Grove, the clients wanted a complete makeover of the open space between the garage, guest house and behind the main house. In order to make this space feel intentional and provoke interaction, I incorporated several pockets of garden beds with a multi-sized paver that organized the transitions throughout the back property. I added a fenced-in storage area to house the recycling and trash bins, and a second fence running parallel to the shed -intentionally separate the driveway from the property. To remove cars from the line of sight from the main house but keep the driveway accessible, and incorporated a gate and arbor to highlight a clear entry. I also placed a rounded outdoor dining table to mirror the curved and organic pathways and garden spaces. Next to the table is an outdoor kitchenette and BBQ. The final touches to the conceptual drawing were bird baths and water fountains that added auditory and visual stimulation- making the space all the more inviting but tranquil.

Hand-Drawn Illustrations

Designed by Blue Door Garden Design and Drawn by Blossom Roberge

Client Projects 2024 & 2025

For this project, the clients wanted a secluded spa zone that connected to the back deck. A hand drawing was requested to illustrate how the suggested steel privacy-screen could act as a seamless buffer when transitioning from one area to the next.

Illustrated on 8 1/2” x 11” drawing paper with graphite.

A hand-drawing to illustrate to the client how the selected plant material would look, once grown and matured. When including trees in the pallet, it’s helpful to show just how large they will eventually grow to. Including trees into this design was intended to act as a privacy screening for both the bedroom and living room windows.

Home illustrated on 8 1/2” x 11” drawing paper- overlayed with plant material on translucent paper with graphite.